Palazzina in vendita

Napoli, Via Elvira Notari - Ponticelli Alta
€ 590.000
500 Mq 500 Mq
3 bagni 3 bagni

Palazzina in vendita

Napoli, Via Elvira Notari - Ponticelli Alta

Descrizione annuncio

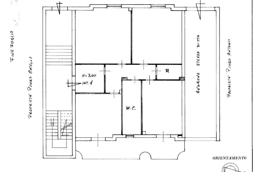
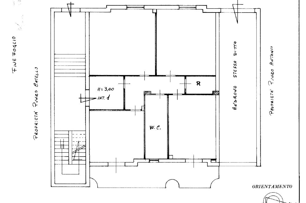
Proponiamo in vendita traversa privata di via Bartolo Longo, palazzina indipendente composta da due unità abitative, ideale per chi desidera una soluzione bifamiliare con ampi spazi interni ed esterni. Al piano rialzato appartamento di 140 mq composto da ampio salone , cucina luminosa , 2 camere da letto 1 bagno e ripostigno. Esposto su due lati con balcone . Primo piano appartamento di 200 mq , caratterizzato da ambienti ampi e ben distribuiti, con salone doppio, cucina grande con balcone, 3 camere da letto e 2 bagni. Completa la proprietà un ampio giardino privato, ideale per trascorrere momenti di relax all'aperto e un terrazzo di copertura, con ottime potenzialità di utilizzo. Al piano seminterrato troviamo un deposito di 200 mq . e posti auto. La soluzione è situata in zona centralissima, ricca di attività commerciali, scuole, mezzi pubbici, svincoli autostradali e Ospedale Del Mare. La palazzina può essere visionata previo avviso telefonico al numero 0815771505. Studio Tecnocasa Ponticelli.

Mostra tutto

Nelle vicinanze

Trasporto pubblico Trasporto pubblico
Bartolo Longo
Bartolo Longo
370 m
Ponticelli
Ponticelli
380 m
De Meis - Longo
De Meis - Longo
390 m
Volpicella
Volpicella
430 m
stazione di Pietrarsa-San Giorgio a Cremano
stazione di Pietrarsa-San Giorgio a Cremano
3,0 Km
Ricariche auto elettriche Ricariche auto elettriche
Cercola Europa | EnelX
2,1 Km
Cercola Gandhi | EnelX
2,4 Km
EnelX Fast Bourelly Car Service
2,8 Km
Portici Siani | EnelX
2,9 Km
Scuole Scuole
La Giocosa
730 m
Istituto di istruzione superiore Sannino-Petriccione
980 m
Scuole
1,1 Km
Scuola Elementare Caruso
1,3 Km
ITIS Enrico Medi
1,4 Km
Farmacia Farmacia
Dott. Giliberti
210 m
Farmacia Tufarelli
1,1 Km
Farmacia
1,1 Km
Ospedali Ospedali
Ospedale del Mare
1,2 Km
Ospedale Evangelico Villa Betania
1,3 Km
AZIENDA SANITARIA LOCALE NA1 - DISTR. 52
2,5 Km
Supermercati Supermercati
Mobilificio Fusco
2,3 Km
Conad City
2,6 Km
Despar
2,7 Km
Conad Superstore
2,9 Km
Negozi Negozi
Caseificio Ambrosio
270 m
Bar Bar
Otto&Angel cafè
2,5 Km
Ristoranti Ristoranti
Funzionino
1,3 Km
Pizzeria
1,5 Km
Trattoria pizzeria El Pobie
1,9 Km
Mangiamoci Su
2,0 Km
Casa Marigliano
2,0 Km
Mostra tutto

Caratteristiche

Rif.:
61203120
Piano:
1 di 1 (Piano medio)
Posti auto:
3
Balconi:
3
Terrazzi:
1
Camere da letto:
7
Mostra tutto
Prezzo Prezzo
€ 590.000
Rata mutuo Rata mutuo
€ 2.800 / mese
Spese annue Spese annue
€ 0
Proponi il tuo prezzoProponi il tuo prezzo

Classe Energetica

G
G
G
G
G
G
G
G
G
EP invernale del fabbricato:
EP estiva del fabbricato:
Anno di costruzione:
1980
Riscaldamento:
Autonomo
Tipo impianto:
A radiatori
Tipo alimentazione:
Metano

Ti interessa visionare l'immobile?

Fissa un appuntamento  Fissa un appuntamento

Richiedi informazioni

Clicca su Leggi per aprire l'informativa
* Questi campi sono obbligatori

Calcola il tuo mutuo

Semplice e senza impegno
Anticipo

( % )
Mutuo

( % )

pochi semplici passi

inserisci i tuoi dati
Questionario completato
Grazie per aver richiesto un appuntamento senza impegno con un nostro Consulente del Credito e Assicurativo.

Hai inserito correttamente tutti i dati necessari e a breve riceverai una e-mail con un link da convalidare per inviare i tuoi dati.
Affiliato
Studio Ponticelli Srl
Corso Ponticelli, 2 80147 Napoli (NA)

Il nostro staff


  • Antonio Pirozzi
    Affiliato

  • Lucia Caputo
    Collaboratrice

  • Mariarca Pirozzi
    Collaboratrice
Corso Ponticelli, 2 80147 Napoli (NA)
Zona: Ponticelli
Mostra su mappa
Orari: dal lunedì al venerdì ore 9.00-13.00 ore 16.00-20.00 sabato ore 9.00 ore 13.00
Affiliato
Studio Ponticelli Srl
Corso Ponticelli, 2 80147 Napoli (NA)

2026 Tecnocasa Franchising S.p.A. - P. IVA 08365160152 - Via Monte Bianco 60/A 20089 Rozzano (MI). Ogni agenzia ha un proprio titolare ed è autonoma. Privacy policy | Policy utilizzo | Cookie policy